
Amia definiert, wie wir Alltagsräume erleben, neu.
Unser Ziel ist die lückenlose Kombination aus Handwerk, Design und Emotion, um Badezimmer in persönliche Rückzugsorte zu verwandeln – Orte, an denen Ruhe auf Kreativität trifft. Geboren in Österreich, inspiriert von dem Mediterranen Lebensgefühl

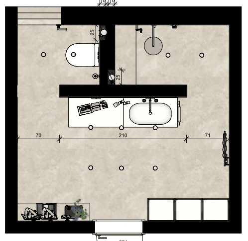
Das ursprüngliche Badezimmer aus den 1980ern war geprägt von dunklen Fliesen, veralteter Sanitärtechnik und einem gedrungenen Raumgefühl. Die Modernisierung war zwingend notwendig, um Komfort, Funktionalität und ein zeitgemäßes Design zu ermöglichen.

In der Entkern-Phase wurde das gesamte Badezimmer entkernt: Entfernung aller Fliesen, Ausbau der alten Dusche/Badewanne, Freilegung der Installationen sowie Vorbereitung für die neue Fußbodenheizung und das wandhängende WC.


Das neue Konzept basiert auf den AMIA Kernprinzipien: Klarheit, Harmonie, ruhiges Raumgefühl, natürliche Materialien und funktionale Modernität. Großformatige Steinfliesen, ein warmer Holzwaschtisch und eine verdeckte Walk-In-Dusche prägen das neue Design



Nach der Entkernung folgte der technische Neuaufbau: Installation der Fußbodenheizung, neue Elektrik, Abdichtung nach ÖNORM, Vorbereitung der Vorwände sowie Fliesenvorbereitung. Dieser Schritt legt die Grundlage für Langlebigkeit und Komfort.


Raffiniert. Geerdet. Architektonisch. ARCH verwandelt Schlichtheit in Stärke – mit Steinoberflächen, die Ruhe und Präzision ausstrahlen. Ein moderner Rückzugsort für alle, die Schönheit in Balance suchen.


Werde Teil unserer Reise
Amia wächst – und mit uns eine Gemeinschaft aus Kund:innen, Partner:innen und Kreativen. Ob du dein Zuhause verändern oder Teil unseres Teams werden möchtest – wir freuen uns, dich kennenzulernen.

Einblicke in unsere jüngsten Projekte. von der ersten Idee bis zur vollendeten Rauminszenierung.